whatsapp icon

App ons direct

Keerweg 30

6122 CL BUCHTEN

Verkocht

https://wa-wo.nl/wp-content/uploads/2025/07/235802964.jpg
235802980-jpg 235802972-jpg

Vraagprijs€ 325.000,-

Woonopp.137 m²

Perceel291 m²

Aantal slaapkamers4

Bouwjaar1964

Soort WoningTwee onder een kapwoning

logo van energielabel Energieklasse D

Financieel advies
curly arrow

Dit object is 972 keer bekeken door 419 bezoekers.

Ruime- en goed onderhouden 2-onder-1-kapwoning met aanbouw, voldoende bergruimte en een onderhoudsvriendelijke achtertuin met luxer buitenverblijf.

Ben je op zoek naar een instapklare woning met veel ruimte, een goed onderhouds- en afwerkingsniveau, gelegen op een goede locatie? Deze woning biedt alles wat je nodig hebt en meer! Gelegen in een rustige- en kindvriendelijke buurt met alle voorzieningen binnen handbereik, zoals winkels, scholen, en openbaar vervoer combineert deze woning een goede afwerking met alle praktische gemakken. Kom snel langs voor een bezichtiging en ontdek zelf de charme van deze heerlijke woning!

INDELING
Kelder
Onder de hal gesitueerde provisiekelder met aansluitpunten voor het witgoed.

Begane grond
de hal entree met meterkast (slimme meter, 12 groepen en 3x aardlek) biedt toegang tot het moderne toilet en het woongedeelte. Het toilet is modern afgewerkt en ingericht met een zwevend closet.

Het leefgedeelte is opgedeeld in een riante L-vormige woonkamer en een mooie leefkeuken welke is gesitueerd in de achtergelegen aanbouw.

De woonkamer is uitgerust met een airco en staat door het open karakter in directe verbinding met de achtergelegen leefkeuken. Deze ruimte is bijzonder ruim te noemen en door de schuifpui is er optimaal contact met de achtergelegen tuin.

In de bergkast staat de Cv-installatie met de verdeler van de vloerverwarming opgesteld. De aanwezige keukeninstallatie is uitgerust met diverse inbouwapparatuur, o.a. een afzuiging, een 5-pits gasfornuis met oven, een koelkast en een vaatwasser.

De begane grond is v.v. vloerverwarming en afgewerkt met een tegelvloer.

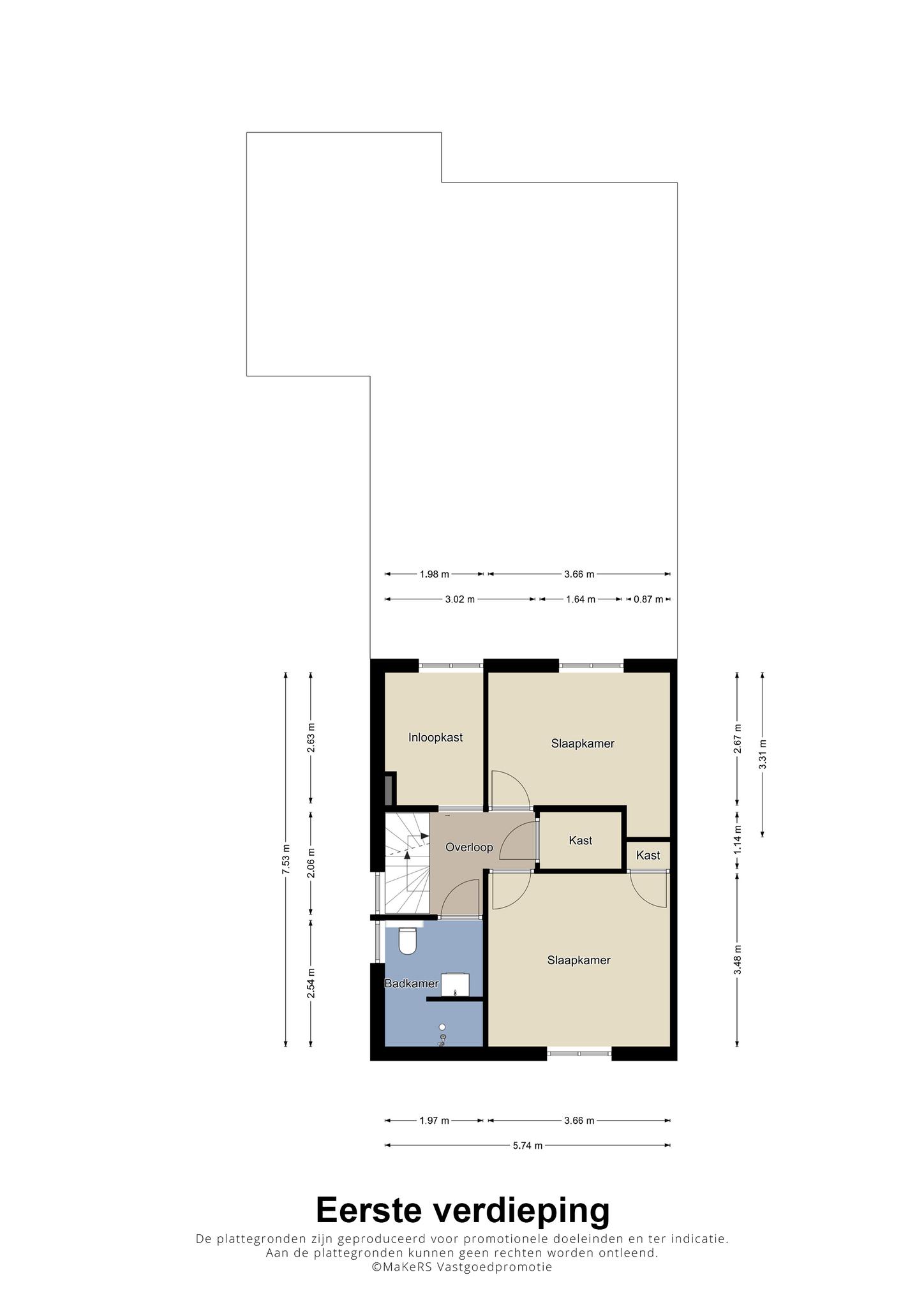
Eerste verdieping
De overloop biedt toegang tot een inloopgarderobe, 3 slaapkamers en een badkamer, respectievelijk groot:
– inloopgarderobe: 1.64 x 1.14m, gelegen tussen de 2 grotere slaapkamers
– slaapkamer 1: 3.48 x 3.66m, met muurkast en gelegen aan de voorzijde van de woning
– slaapkamer 2: 2.67 x 3.66m, gelegen aan de achterzijde van de woning
– slaapkamer 3: 2.63 x 1.98m, gelegen aan de achterzijde van de woning en momenteel in gebruik als inloopgarderobe
– luxe afgewerkte badkamer (2.54 x 1.97m) welke is ingedeeld met een inloopdouche, een vaste wastafel verwerkt in een meubel en een toilet. Tevens is de badkamer uitgerust met elektrische vloerverwarming.

Zolderverdieping
De zolder is middels een vaste trap bereikbaar. De verdieping is uitgebreid met een dakkapel aan de achterzijde waardoor er een 4de slaapkamer is gecreëerd in de woning.

Tuin
Voor- en achtergelegen gelegen geheel omsloten tuin. De achtertuin is niet alleen mooi, maar ook praktisch. De tuin is gesitueerd op het zuid-westen, onderhoudsvriendelijk aangelegd en biedt een overdekt terras en een luxer buitenverblijf om ook bij mindere weersomstandigheden toch buiten te kunnen zitten.

Garage
De garage met voorgelegen oprit is een prima berging voor fietsen of tuingereedschap. Vanuit het straatbeeld is de achtertuin middels de garage bereikbaar.

BIJZONDERHEDEN
– het pand is gelegen op een leuke- en rustige locatie
– het pand kent veel lichtinval en een open indeling, wat het tot een fijne en lichte plek maakt om te wonen
– het pand is gelegen op een perceel met een oppervlakte van 291m2
– het pand is v.v. een woonoppervlakte van ca. 135m2
– het pand is voorzien van betonnen- en houten verdiepingsvloeren
– het pand is uitgerust met kunststof- en houten kozijnen grotendeels v.v. HR++ beglazing voor optimale isolatie en een lager energieverbruik
– het pand is uitgerust met rolluiken
– Cv-installatie, merk: AWB, bj. 2003 (eigendom)

INTERESSE? MAAK DAN EEN AFSPRAAK MET WAGEMANS WONEN VOOR EEN BEZICHTIGING.

– Uitdrukkelijk wordt gesteld dat een koopovereenkomst met betrekking tot deze onroerende zaak eerst dan tot stand is gekomen nadat alle partijen de koopovereenkomst hebben getekend, de zogenaamde “schriftelijkheidsvereiste” is in dezen van toepassing.
– De waarborgsom/bankgarantie bedraagt 10% van de koopsom en is een uitdrukkelijk onderdeel van de koopovereenkomst. De koper dient deze binnen 3 dagen ná het vervallen van de eventuele ontbindende voorwaarden bij de transporterende notaris te deponeren.
– Koper is gerechtigd voor zijn rekening een bouwkundige keuring te (laten) verrichten, dan wel adviseurs te raadplegen teneinde een goed inzicht te verkrijgen over de staat en het gebruik van deze onroerende zaak.
– Voor het optimaal behartigen van diens belangen adviseert Wagemans Wonen geïnteresseerden en kopers om een professionele aankoopmakelaar in te schakelen.
– De Meetinstructie is gebaseerd op de NEN2580. De Meetinstructie is bedoeld om een meer eenduidige manier van meten toe te passen voor het geven van een indicatie van de gebruiksoppervlakte. De Meetinstructie sluit verschillen in meetuitkomsten niet volledig uit, door bijvoorbeeld interpretatieverschillen, afrondingen of beperkingen bij het uitvoeren van de meting.

Status Verkocht

Vraagprijs  325.000,-

Woonhuis soort Eengezinswoning

Woonhuis type Twee onder een kapwoning

Bouwjaar 1964

Woonoppervlakte 137 m²

Aantal kamers 6

Soort dak Zadeldak

Isolatie Dubbel glasdakisolatiehr glas

Perceel oppervlakte 291 m²

Bouwvorm Bestaande bouw

Energieklasse D

Onderhoud binnen Goed

Tuin Achtertuinvoortuin

Hoofdtuin Achtertuin

Oppervlakte hoofdtuin 104 m²

Ligging hoofdtuin West

Kwaliteit tuin Normaal

Aanvaarding In overleg

Ligging In woonwijk

Schuur / Berging Aangebouwd hout

Parkeer faciliteiten Openbaar parkerenop eigen terrein

Garage Aangebouwd steen

Aantal slaapkamers 4

Bezichtiging plannen

Vul het formulier in de de bezichtiging te plannen.

"*" geeft vereiste velden aan

Naam*

235802964.jpg 235802980.jpg 235802972.jpg 235803026.jpg 235803030.jpg 235803022.jpg 235803040.jpg 235803054.jpg 235803044.jpg 235803034.jpg 235803060.jpg 235803068.jpg 235803074.jpg 235803084.jpg 235803094.jpg 235803098.jpg 235803124.jpg 235803132.jpg 235803110.jpg 235803118.jpg 235803104.jpg 235803142.jpg 235803164.jpg 235803146.jpg 235803150.jpg 235803156.jpg 235803136.jpg 235803170.jpg 235803178.jpg 235803016.jpg 235802986.jpg 235802992.jpg 235803000.jpg 235803002.jpg 235803008.jpg 235803012.jpg 235804766.jpg 235804806.jpg 235804842.jpg 235804862.jpg 235804874.jpg 239637368.jpg