whatsapp icon

App ons direct

Mauritsstraat 8

6127 BV GREVENBICHT

Beschikbaar

https://wa-wo.nl/wp-content/uploads/2026/03/266316554.jpg
266316600-jpg 266316614-jpg

Vraagprijs€ 375.000,-

Woonopp.120 m²

Perceel331 m²

Aantal slaapkamers3

Bouwjaar1985

Soort WoningGeschakelde woning

logo van energielabel Energieklasse A

Financieel advies
curly arrow

Dit object is 641 keer bekeken door 417 bezoekers.

Deze deels geschakelde woning is gelegen op een uiterst rustige en gewilde locatie in Grevenbicht. Naast de rustige ligging en een perceeloppervlakte van 331m2 is de woning verduurzaamd en uitgerust met een grotere garage en een afsluitbare carport. De achtertuin is geheel omsloten en biedt bijzonder veel privacy. Bedenk je niet en kom vrijblijvend kijken!

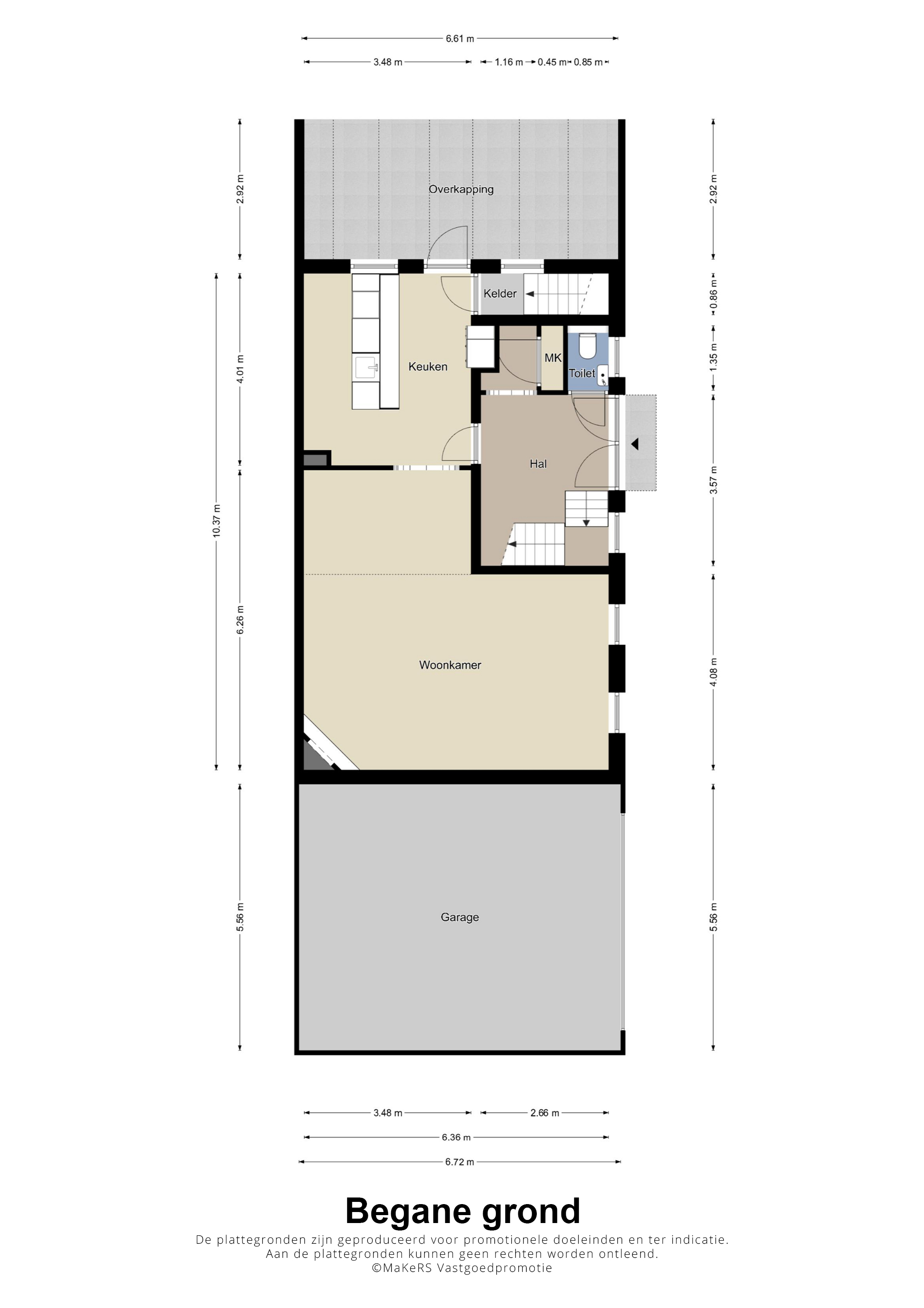
INDELING
Kelder
onder de hal gelegen kelder welke is opgedeeld in 2 ruimten.

Begane grond
de ruimte hal met meterkast (slimme meter, 10 groepen en 3x aardlek) biedt toegang tot het toilet en het woongedeelte.

De keuken kent een gesloten karakter en biedt toegang tot de woonkamer, de kelder en de achtergelegen tuin. Verder is de ruimte ingericht met een keukeninstallatie welke is v.v. diverse inbouwapparatuur o.a. een keramische kookplaat, een combi-magnetron, een koelkast en een vaatwasser.

De L-vormige woonkamer is ingedeeld met een zit- en eetgedeelte. De aanwezige airco en haardpartij kunnen bijdragen aan een goedkope manier van verwarmen.

De begane grond is afgewerkt met een tegelvloer.

Eerste verdieping
de overloop biedt toegang tot 3 slaapkamers, een wasruimte en een badkamer, respectievelijk groot:
– slaapkamer 1: 3.48 x 3.60m, gelegen aan de voorzijde van de woning
– slaapkamer 2: 3.27 x 3.60m, gelegen aan de voorzijde van de woning
– slaapkamer 3: 3.27 x 2.18m, gelegen aan de achterzijde van de woning
– wasruimte: 1.27 x 1.61
– badkamer: 3.48 x 2.60m, welke is ingedeeld met een ligbad, een douche, een toilet en een wastafel welke is verwerkt in een badmeubel

Zolder
de zolder is bereikbaar middels een vlizotrap. De ruimte is in gebruik als bergzolder en de Cv-installatie staat op deze verdieping opgesteld.

Tuin
de woning is uitgerust met grotere en sfeervolle tuin. Vanuit de keuken is een overdekt terras bereikbaar. De tuin is verder ingedeeld met borders en kunstgras. Het perceel is volledig omheind en veel groen zorgt voor een optimale privacy.
Achter in de tuin staat een stenen buitenberging/garage, terwijl de woning ook aan de voorzijde uitgerust is met een riante (afsluitbare) carport.

BIJZONDERHEDEN
– het pand beschikt over een woonoppervlakte van ca. 120m2
– het pand is gelegen op een perceeloppervlakte van 331m2
– het pand kent een mooie en rustige ligging
– het pand verkeert in een goede staat
– het pand is grotendeels uitgerust met kunststof kozijnen
– het pand is grotendeels uitgerust met tripple beglazing
– het pand is uitgerust met rolluiken
– het pand is v.v. betonnen- en houten verdiepingsvloeren
– het pand is gelegen nabij diverse voorzieningen en belangrijke uitvalswegen
– het pand is in 2019 uitgerust met een nieuw dak
– het pand is beveiligd met een camerasysteem
– het pand is uitgerust met 12 zonnepanelen, bj. 2023 (eigendom)
– Cv-installatie, merk: Nefit Trendline HRC 25 CW4, bj. 2014 (eigendom)

INTERESSE? MAAK DAN EEN AFSPRAAK MET WAGEMANS WONEN VOOR EEN BEZICHTIGING OF VRIJBLIJVEND FINANCIEEL ADVIES.

– Uitdrukkelijk wordt gesteld dat een koopovereenkomst met betrekking tot deze onroerende zaak eerst dan tot stand is gekomen nadat alle partijen de koopovereenkomst hebben getekend, de zogenaamde “schriftelijkheidsvereiste” is in dezen van toepassing.
– De waarborgsom/bankgarantie bedraagt 10% van de koopsom en is een uitdrukkelijk onderdeel van de koopovereenkomst. De koper dient deze binnen 3 dagen ná het vervallen van de eventuele ontbindende voorwaarden bij de transporterende notaris te deponeren.
– Koper is gerechtigd voor zijn rekening een bouwkundige keuring te (laten) verrichten, dan wel adviseurs te raadplegen teneinde een goed inzicht te verkrijgen over de staat en het gebruik van deze onroerende zaak.
– Voor het optimaal behartigen van diens belangen adviseert Wagemans Wonen geïnteresseerden en kopers om een professionele aankoopmakelaar in te schakelen.
– De Meetinstructie is gebaseerd op de NEN2580. De Meetinstructie is bedoeld om een meer eenduidige manier van meten toe te passen voor het geven van een indicatie van de gebruiksoppervlakte. De Meetinstructie sluit verschillen in meetuitkomsten niet volledig uit, door bijvoorbeeld interpretatieverschillen, afrondingen of beperkingen bij het uitvoeren van de meting.

Status Beschikbaar

Vraagprijs  375.000,-

Woonhuis soort Eengezinswoning

Woonhuis type Geschakelde woning

Bouwjaar 1985

Woonoppervlakte 120 m²

Aantal kamers 5

Soort dak Zadeldak

Isolatie Muurisolatiedakisolatievloerisolatie

Perceel oppervlakte 331 m²

Bouwvorm Bestaande bouw

Energieklasse A

Onderhoud binnen Goed

Tuin Achtertuin

Hoofdtuin Achtertuin

Oppervlakte hoofdtuin 150 m²

Ligging hoofdtuin Oost

Kwaliteit tuin Normaal

Aanvaarding In overleg

Ligging In woonwijk

Parkeer faciliteiten Openbaar parkerenop eigen terrein

Garage Vrijstaand steencarport

Aantal slaapkamers 3

Bezichtiging plannen

Vul het formulier in de de bezichtiging te plannen.

"*" geeft vereiste velden aan

Naam*

266316554.jpg 266316600.jpg 266316614.jpg 266316596.jpg 266316716.jpg 266316720.jpg 266316730.jpg 266316724.jpg 266316636.jpg 266316630.jpg 266316646.jpg 266316650.jpg 266316654.jpg 266316660.jpg 266316664.jpg 266316668.jpg 266316670.jpg 266316678.jpg 266316694.jpg 266316688.jpg 266316626.jpg 266316686.jpg 266316682.jpg 266316696.jpg 266316700.jpg 266316708.jpg 266316704.jpg 266316624.jpg 266316562.jpg 266316570.jpg 266316580.jpg 266316588.jpg 266316620.jpg 266318340.jpg 266318352.jpg 266318364.jpg 266318374.jpg 266318384.jpg 266629252.png