whatsapp icon

App ons direct

Gateweiden 12

6373 JM LANDGRAAF

Verkocht

https://wa-wo.nl/wp-content/uploads/2025/07/211731593.jpg
211731587-jpg 211731585-jpg

Vraagprijs€ 389.000,-

Woonopp.141 m²

Perceel337 m²

Aantal slaapkamers4

Bouwjaar1962

Soort WoningTwee onder een kapwoning

logo van energielabel Energieklasse D

Financieel advies
curly arrow

Dit object is 946 keer bekeken door 529 bezoekers.

Deze ruime 2-onder-1-kapwoning is gelegen in een rustige- en kindvriendelijke buurt. Het pand kent een luxe afwerking en een optimaal wooncomfort. Met 4 slaapkamer, een grote garage en aanbouw op de begane grond en een makkelijk te onderhouden tuin, is dit het ideale huis voor gezinnen die ruimte, privacy en kwaliteit zoeken. Ideaal voor jonge gezinnen die van een veilige en rustige woonomgeving houden, maar toch alle benodigde voorzieningen binnen handbereik willen hebben.

INDELING
Kelder
onder de hal en deels onder de woonkamer gelegen kelder met aansluitpunten voor witgoed en de standplaats van de CV-installatie en omvormer voor zonnepanelen.

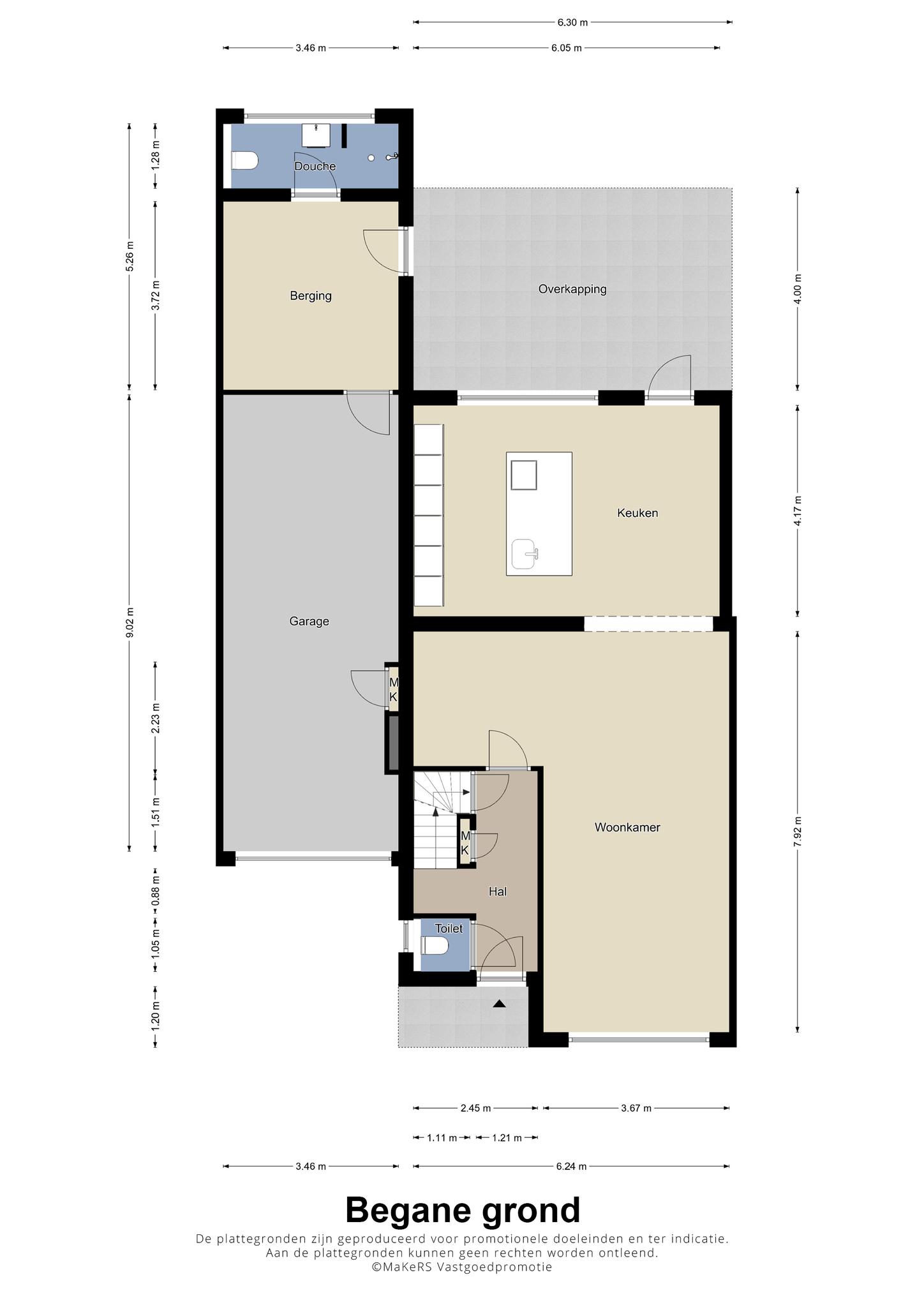
Begane grond
de hal met meterkast (slimme meter, 10 groepen, een krachtgroep en een 3-fase-aansluiting) biedt toegang tot de eerste verdieping, het woongedeelte, de kelder en het toilet.

De grote woonkamer kent een L-vormig karakter omdat de ruimte van de voormalige keuken bij de woonkamer is getrokken. De achtergelegen aanbouw is volledig ingericht als een prachtige leefkeuken met een luxe keukeninstallatie welke van alle gemakken is voorzien. De aanwezige inbouwapparatuur zijn een afzuiging, een inductie kookplaat, een vaatwasser, een koelkast, een vriezer, een koffie-apparaat en een combi-oven. Kortom “perfect” voor de kookliefhebber die van gemak houdt!

Verder wordt de aanbouw compleet compleet gemaakt met airconditioning voor een prettig klimaat, het hele jaar door. De openslaande tuindeuren zorgen voor een mooi tuincontact en een naadloze overgang van binnen naar buiten.

De gehele begane grond is afgewerkt met een plavuizen vloer en voorzien van vloerverwarming.

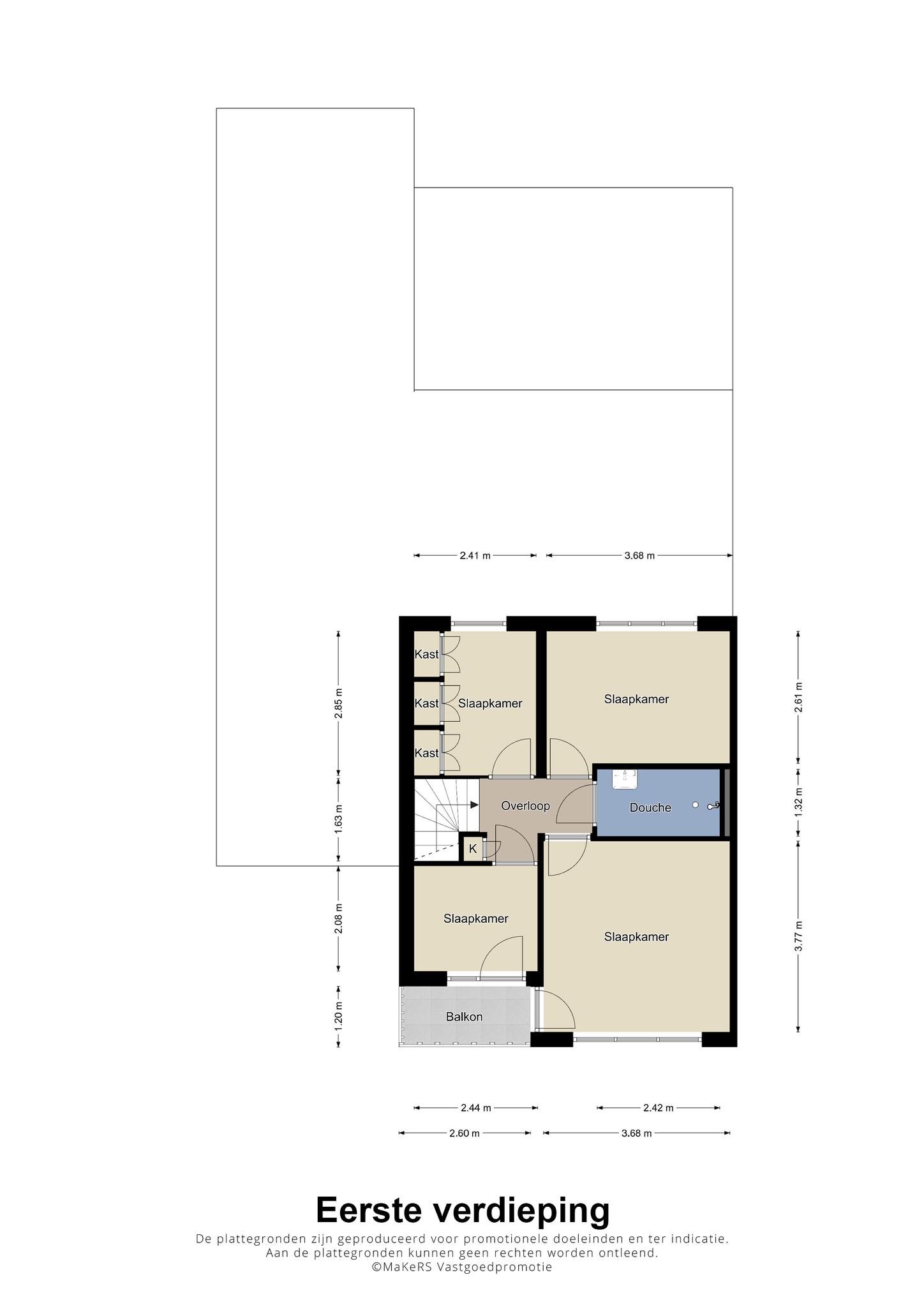
Eerste verdieping:
de overloop biedt toegang tot 4 slaapkamers en een badkamer, respectievelijk groot:
– slaapkamer 1: 2.08 x 2.44m, met toegang tot het balkon en gelegen aan de voorzijde van de woning
– slaapkamer 2: 3.77 x 3.68m, met toegang tot het balkon en gelegen aan de voorzijde van de woning
– slaapkamer 3: 2.85 x 2.44m, met vaste kastenwand en gelegen aan de achterzijde van de woning
– slaapkamer 4: 2.61 x 3.68m, gelegen aan de voorzijde van de woning
– luxe uitgevoerde badkamer (1.32 x 2.42m) welke is ingericht met een inloopdouche en een vaste wastafel die mooi is verwerkt in een stijlvol badmeubel
Net zoals de begane grond is de eerste verdieping afgewerkt met een plavuizen vloer welke tevens is voorzien van vloerverwarming.

Garage
de woning is uitgerust met een aanpandige garage (9.02 x 3.46m) met extra groepenkast, elektrisch bedienbare sectionaalpoort, een voorgelegen oprit en een achtergelegen- multi-functionele ruimte, compleet ingedeeld met een extra toilet en een inloopdouche. Deze ruimte, met buitendeur, biedt tal van mogelijkheden, van extra opbergruimte tot een werk-, sport-, gastenverblijf of een extra slaapkamer. Ook hier is de vloerafwerking zoals in het woonhuis in combinatie met vloerverwarming.

Tuin
De voor- en onderhoudsvriendelijke achtertuin biedt volop ruimte voor buitenleven, met een overdekt terras, een buitenberging voor tuingereedschap en een extra overkapping voor schaduw op warme dagen.

BIJZONDERHEDEN
– het pand kent een mooie ligging
– het pand is instapklaar te noemen
– het pand beschikt over een woonoppervlakte van ca. 140m2
– het pand is v.v. kunststof kozijnen met dubbele beglazing
– het pand is uitgerust met rolluiken
– het pand is v.v. betonnen verdiepingsvloeren
– het pand is gelegen op een perceel van 337m2
– het pand is gelegen nabij diverse voorzieningen en belangrijke uitvalswegen
– de hoofdbouw kent een niet-geïsoleerde luchtspouw;
– de garage en aanbouwkeuken (2009) zijn gerealiseerd met geïsoleerde luchtspouw;
– het pand is in 2016 voorzien van een nieuw dak met geïsoleerde dakplaat
– het pand is uitgerust met 9 zonnepanelen, bj. 2018 (eigendom)
– Cv-installatie, merk: Intergas, bj. 2017 (eigendom)

INTERESSE? MAAK DAN EEN AFSPRAAK MET WAGEMANS WONEN VOOR EEN BEZICHTIGING.

– Uitdrukkelijk wordt gesteld dat een koopovereenkomst met betrekking tot deze onroerende zaak eerst dan tot stand is gekomen nadat alle partijen de koopovereenkomst hebben getekend, de zogenaamde “schriftelijkheidsvereiste” is in dezen van toepassing.
– De waarborgsom/bankgarantie bedraagt 10% van de koopsom en is een uitdrukkelijk onderdeel van de koopovereenkomst. De koper dient deze binnen 3 dagen ná het vervallen van de eventuele ontbindende voorwaarden bij de transporterende notaris te deponeren.
– Koper is gerechtigd voor zijn rekening een bouwkundige keuring te (laten) verrichten, dan wel adviseurs te raadplegen teneinde een goed inzicht te verkrijgen over de staat en het gebruik van deze onroerende zaak.
– Voor het optimaal behartigen van diens belangen adviseert Wagemans Wonen geïnteresseerden en kopers om een professionele aankoopmakelaar in te schakelen.
– De Meetinstructie is gebaseerd op de NEN2580. De Meetinstructie is bedoeld om een meer eenduidige manier van meten toe te passen voor het geven van een indicatie van de gebruiksoppervlakte. De Meetinstructie sluit verschillen in meetuitkomsten niet volledig uit, door bijvoorbeeld interpretatieverschillen, afrondingen of beperkingen bij het uitvoeren van de meting.

Status Verkocht

Vraagprijs  389.000,-

Woonhuis soort Eengezinswoning

Woonhuis type Twee onder een kapwoning

Bouwjaar 1962

Woonoppervlakte 141 m²

Aantal kamers 7

Soort dak Zadeldak

Isolatie Muurisolatiedakisolatievloerisolatie

Perceel oppervlakte 337 m²

Bouwvorm Bestaande bouw

Energieklasse D

Onderhoud binnen Goed

Tuin Achtertuinvoortuin

Hoofdtuin Achtertuin

Oppervlakte hoofdtuin 1100 m²

Ligging hoofdtuin Zuidwest

Kwaliteit tuin Verzorgd

Aanvaarding In overleg

Ligging In woonwijk

Schuur / Berging Vrijstaand kunststof

Parkeer faciliteiten Openbaar parkerenop eigen terrein

Garage Aangebouwd steen

Aantal slaapkamers 4

Bezichtiging plannen

Vul het formulier in de de bezichtiging te plannen.

"*" geeft vereiste velden aan

Naam*

211731593.jpg 211731587.jpg 211731585.jpg 211731483.jpg 211731477.jpg 211731471.jpg 211731503.jpg 211731495.jpg 211731517.jpg 211731489.jpg 211731513.jpg 211731509.jpg 211731485.jpg 211731523.jpg 211731527.jpg 211731531.jpg 211731535.jpg 211731549.jpg 211731539.jpg 211731543.jpg 211731569.jpg 211731573.jpg 211731577.jpg 211731579.jpg 211731553.jpg 211731557.jpg 211731561.jpg 211731565.jpg 211731595.jpg 211731607.jpg 211731603.jpg 211731605.jpg 211731609.jpg 211731611.jpg 211731615.jpg 211731619.jpg 211731623.jpg 211731627.jpg 211732595.jpg 211732601.jpg 211732609.jpg 211732619.jpg