whatsapp icon

App ons direct

Medealaan 6

6124 AW PAPENHOVEN

Beschikbaar

https://wa-wo.nl/wp-content/uploads/2026/03/266621006.jpg
266621000-jpg 266620998-jpg

Vraagprijs€ 359.000,-

Woonopp.141 m²

Perceel433 m²

Aantal slaapkamers3

Bouwjaar1973

Soort WoningVrijstaande woning

logo van energielabel Energieklasse D

Financieel advies
curly arrow

Dit object is 635 keer bekeken door 342 bezoekers.

Deze vrijstaande woning is gelegen op een rustige locatie in Schipperskerk! De combinatie van vrijstaand wonen, een aanbouw op de begane grond en een grote garage, zijn wellicht de kenmerken die moeten voldoen aan jouw nieuwe woning. Bedenk je niet en kom vrijblijvend kijken!

INDELING
Begane grond
de hal met trappenkast en meterkast (slimme meter, 8 groepen en 1x aardlek) biedt toegang tot het toilet en het woongedeelte.

In de basisbouw van de woning is de L-vormige woonkamer gelegen welke ruim (ca. 43m2) en daglicht-rijk te noemen is. De vloer is afgewerkt met vloerbedekking.

Aan de achterzijde is de woning uitgebreid met een aanbouw waar o.a. de keuken is gesitueerd. De keuken met laminaatvloer en muurkast is ingericht met een keukeninstallatie welke is opgesteld in een hoek. De diverse aanwezige inbouwapparatuur zijn o.a. afzuiging, een gaskookplaat, een koelkast en een vaatwasser.

Het achtergelegen portaal met buitendeur naar de oprit, biedt toegang tot het 2de toilet en de ruime garage welke is deels in gebruik is als wasruimte. De garage is ruim van opzet en aan de achterzijde uitgebreid met een extra bergruimte. Zowel de achtergelegen tuin is middels de garage bereikbaar als de voorgelegen oprit door de aanwezigheid van een buitendeur en een kantelpoort.

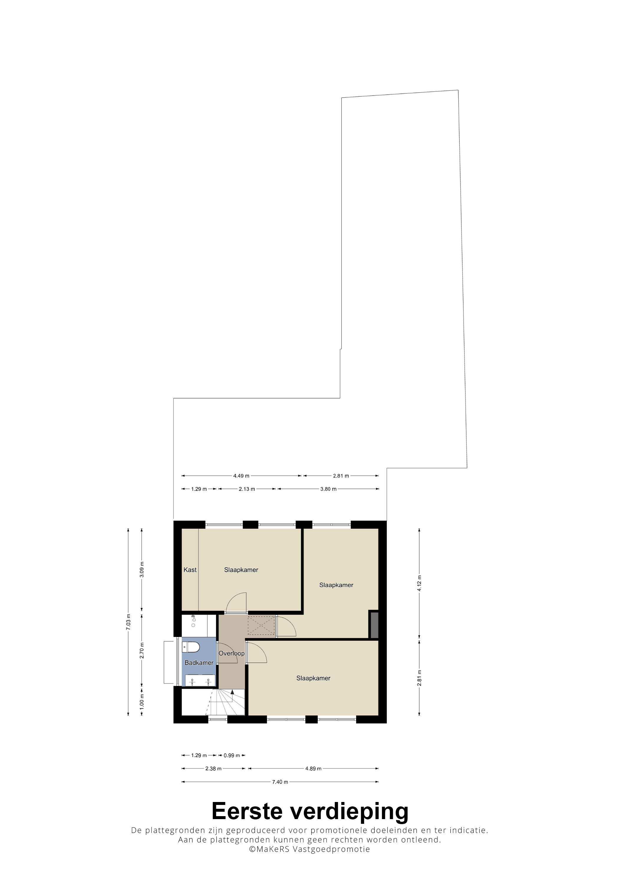
Eerste verdieping
de overloop biedt toegang tot 3 slaapkamers en een badkamer, respectievelijk groot:
– slaapkamer 1: 2.81 x 4.89m, gelegen aan de voorzijde van de woning
– slaapkamer 2: 4.12 x 2.81m, gelegen aan de achterzijde van de woning
– slaapkamer 3: 3.09 x 4.49m, gelegen aan de achterzijde van de woning en met vaste kastenwand
– 1/2 betegelde badkamer (2.70 x 1.29m) welke is ingedeeld met een douche, een dubbele wastafel verwerkt in een meubel en een toilet

Zolder
de bergzolder is bereikbaar middels een vlizotrap bereikbaar en middels 2 dakramen is er daglichttoetreding. Naast voldoende berging staat op deze verdieping tevens de Cv-installatie opgesteld.

Tuin
de woning is uitgerust met zowel een voor- en achtertuin. De achtertuin is volledig omsloten en ingedeeld met een terras, borders, een tuinkas en een houten tuinhuis. Vanuit het straatbeeld is de achtertuin rechtstreeks bereikbaar.

BIJZONDERHEDEN
– het pand beschikt over een woonoppervlakte van ca. 140m2
– het pand is gelegen op een perceeloppervlakte van 433m2
– het pand kent een rustige ligging nabij mooie wandelgebieden
– het pand is uitgerust met houten kozijnen
– het pand is uitgerust met HR++ en dubbele beglazing
– het pand is v.v. betonnen- en houten verdiepingsvloeren
– het pand is gelegen nabij diverse voorzieningen en belangrijke uitvalswegen
– Cv-installatie, merk: Intergas, bj. 2012 (huur)

INTERESSE? MAAK DAN EEN AFSPRAAK MET WAGEMANS WONEN VOOR EEN BEZICHTIGING OF VRIJBLIJVEND FINANCIEEL ADVIES.

– Uitdrukkelijk wordt gesteld dat een koopovereenkomst met betrekking tot deze onroerende zaak eerst dan tot stand is gekomen nadat alle partijen de koopovereenkomst hebben getekend, de zogenaamde “schriftelijkheidsvereiste” is in dezen van toepassing.
– De waarborgsom/bankgarantie bedraagt 10% van de koopsom en is een uitdrukkelijk onderdeel van de koopovereenkomst. De koper dient deze binnen 3 dagen ná het vervallen van de eventuele ontbindende voorwaarden bij de transporterende notaris te deponeren.
– Koper is gerechtigd voor zijn rekening een bouwkundige keuring te (laten) verrichten, dan wel adviseurs te raadplegen teneinde een goed inzicht te verkrijgen over de staat en het gebruik van deze onroerende zaak.
– Voor het optimaal behartigen van diens belangen adviseert Wagemans Wonen geïnteresseerden en kopers om een professionele aankoopmakelaar in te schakelen.
– De Meetinstructie is gebaseerd op de NEN2580. De Meetinstructie is bedoeld om een meer eenduidige manier van meten toe te passen voor het geven van een indicatie van de gebruiksoppervlakte. De Meetinstructie sluit verschillen in meetuitkomsten niet volledig uit, door bijvoorbeeld interpretatieverschillen, afrondingen of beperkingen bij het uitvoeren van de meting.

Status Beschikbaar

Vraagprijs  359.000,-

Woonhuis soort Eengezinswoning

Woonhuis type Vrijstaande woning

Bouwjaar 1973

Woonoppervlakte 141 m²

Aantal kamers 7

Soort dak Zadeldak

Isolatie Dubbel glasdakisolatie

Perceel oppervlakte 433 m²

Bouwvorm Bestaande bouw

Energieklasse D

Onderhoud binnen Redelijk

Tuin Achtertuinvoortuin

Hoofdtuin Achtertuin

Oppervlakte hoofdtuin 83 m²

Ligging hoofdtuin Zuid

Kwaliteit tuin Normaal

Aanvaarding In overleg

Ligging In woonwijk

Parkeer faciliteiten Openbaar parkerenop eigen terrein

Garage Inpandig

Aantal slaapkamers 3

Bezichtiging plannen

Vul het formulier in de de bezichtiging te plannen.

"*" geeft vereiste velden aan

Naam*

266621006.jpg 266621000.jpg 266620998.jpg 266620994.jpg 266620984.jpg 266620688.jpg 266620704.jpg 266620696.jpg 266620868.jpg 266620850.jpg 266620720.jpg 266620732.jpg 266620714.jpg 266620772.jpg 266620814.jpg 266620880.jpg 266620892.jpg 266620902.jpg 266620910.jpg 266620918.jpg 266620932.jpg 266620940.jpg 266620948.jpg 266620616.jpg 266620634.jpg 266620626.jpg 266620642.jpg 266620650.jpg 266620670.jpg 266620662.jpg 266620678.jpg 266620596.jpg 266620606.jpg 266620956.jpg 266620966.jpg 266620972.jpg 266621850.jpg 266621858.jpg 266621866.jpg 266621874.jpg 266621906.png