whatsapp icon

App ons direct

Vleugelmorgenstraat 27

6171 NN STEIN

Verkocht

https://wa-wo.nl/wp-content/uploads/2025/11/253362272.jpg
253362390-jpg 253362410-jpg

Vraagprijs€ 385.000,-

Woonopp.147 m²

Perceel399 m²

Aantal slaapkamers3

Bouwjaar1975

Soort WoningVrijstaande woning

logo van energielabel Energieklasse C

Financieel advies
curly arrow

Dit object is 806 keer bekeken door 438 bezoekers.

Deze mooie woning moet beslist gezien worden! Wanneer je op zoek bent naar een vrijstaand karakter, een fijne- en kindvriendelijke locatie in combinatie met een goed niveau van onderhoud, dan is dit gegarandeerd jouw nieuwe “thuis”. Het vrijstaande karakter komt helemaal tot haar recht met de vrije ligging aan de achterzijde. Tevens is de woning op de begane grond uitgebreid met een aanbouw. Bedenk je niet en kom vrijblijvend kijken!

INDELING
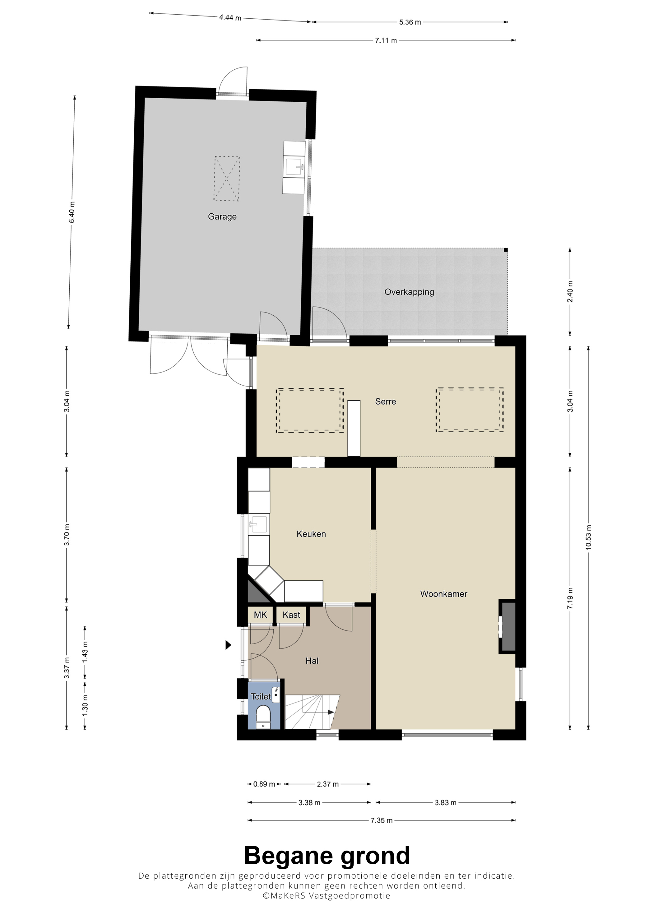
Begane grond
de hal met meterkast (digitale meter, 10 groepen en 4x aardlek) biedt toegang tot het toilet en het woongedeelte.

De keuken, de eetkamer (met airco) en de woonkamer vormen samen het woongedeelte op de begane grond en vormen 1 geheel door een open karakter.

De woonkamer is aan de voorzijde van de woning gelegen en is ingericht met een gashaard. De verbinding met de achtergelegen eetkamer is naadloos te noemen. De eetkamer is gelegen in de aanbouw welke ontzettend daglicht-rijk is door de aanwezige lichtkoepels en de raampartij en dubbele buitendeur.

De keuken staat in verbinding met zowel de woonkamer als de eetkamer. De ruimte is ingericht met een keukeninstallatie welke in een hoek is opgesteld met diverse inbouwapparatuur. De inbouwapparatuur zijn een afzuiging, een inductie kookplaat, een oven, een koelkast en een vaatwasser welke is vernieuwd in 2025.

Vanuit de aanbouw is de garage met zadeldak toegankelijk. De garage beschikt over een voorgelegen oprit, een tuindeur en een wateraansluiting. Verder is er bijzonder veel ruimte doordat de garage is uitgerust met een bergzolder en een breedte kent van bijna 4.50m. De bergzolder is middels een vlizotrap bereikbaar en is ideaal te noemen voor het opslaan van diverse spullen. Hierdoor kan de zolderverdieping in de woning goed worden benut als 4de slaapkamer.

De gehele begane grond is (m.u.v. de garage) afgewerkt met een tegelvloer.

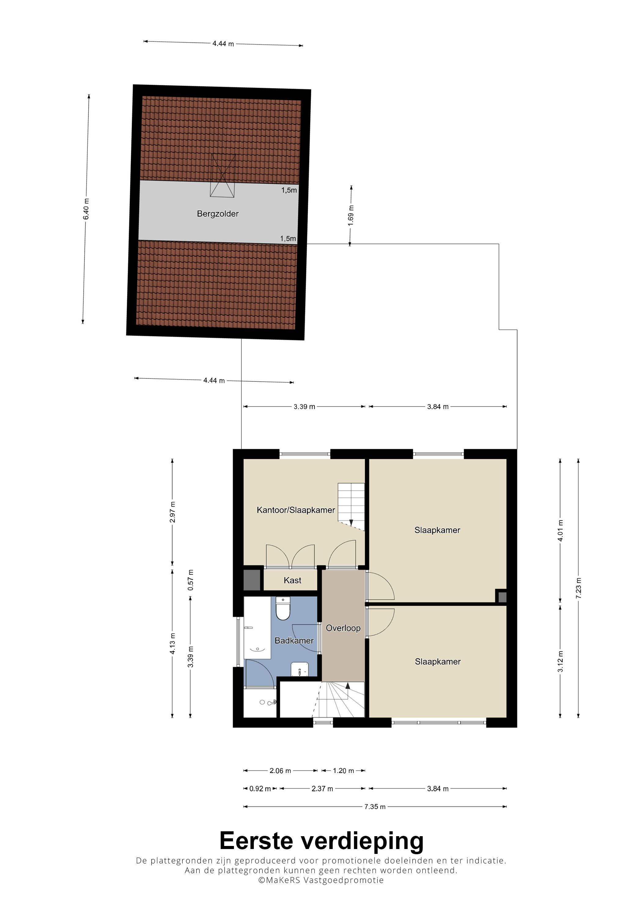
Eerste verdieping
de overloop biedt toegang tot 3 slaapkamers en de badkamer, respectievelijk groot:
– slaapkamer 1: 3.12 x 3.84m, gelegen aan de voorzijde van de woning
– slaapkamer 2: 4.01 x 3.84m, met airco en gelegen aan de achterzijde van de woning
– slaapkamer 3: 2.97 x 3.39m, met inbouwkast en gelegen aan de achterzijde van de woning
– een geheel betegelde badkamer (3.39 x 2.06m) welke is ingedeeld met een ligbad, een douche, een wastafel en een toilet.
De gehele eerste verdieping is (m.u.v. de overloop en de badkamer) afgewerkt met laminaatvloer.

Zolder
de zolder is bereikbaar middels een vaste trap vanuit slaapkamer 3. Met een nokhoogte van 2.10m is er voldoende ruimte om te staan. Zoals eerder benoemd is de ruimte prima af te werken als 4de slaapkamer. De Cv-installatie staat ook op de zolderverdieping opgesteld.

Tuin
de woning is uitgerust met zowel een voor-, zij-, als achtertuin. Door de ligging aan gemeentelijke grond aan de achterzijde geniet u van een heerlijke, vrije ligging met volop privacy. De achtertuin is verzorgd aangelegd en beschikt over een gazon, kleurrijke borders en een overdekt terras waar u tot in de late uurtjes kunt genieten.

BIJZONDERHEDEN
– het pand beschikt over een woonoppervlakte van ca. 150m2
– het pand is gelegen op een perceeloppervlakte van 399m2
– het pand kent een mooie-, rustige- en kindvriendelijke ligging
– het pand verkeert in een goede staat
– het pand is uitgerust met houten- en aluminium kozijnen
– het pand is grotendeels uitgerust met dubbele beglazing
– het pand is uitgerust met rolluiken
– het pand is v.v. betonnen- en houten verdiepingsvloeren
– het pand is gelegen nabij diverse voorzieningen en belangrijke uitvalswegen
– het pand is uitgebreid met een aanbouw op de begane grond
– de aanbouw is in 2025 v.v. nieuwe lichtkoepels en nieuwe dakbedekking
– Cv-installatie, merk: Remeha Calenta, bj. 2015 (eigendom)

INTERESSE? MAAK DAN EEN AFSPRAAK MET WAGEMANS WONEN VOOR EEN BEZICHTIGING OF VRIJBLIJVEND FINANCIEEL ADVIES.

– Uitdrukkelijk wordt gesteld dat een koopovereenkomst met betrekking tot deze onroerende zaak eerst dan tot stand is gekomen nadat alle partijen de koopovereenkomst hebben getekend, de zogenaamde “schriftelijkheidsvereiste” is in dezen van toepassing.
– De waarborgsom/bankgarantie bedraagt 10% van de koopsom en is een uitdrukkelijk onderdeel van de koopovereenkomst. De koper dient deze binnen 3 dagen ná het vervallen van de eventuele ontbindende voorwaarden bij de transporterende notaris te deponeren.
– Koper is gerechtigd voor zijn rekening een bouwkundige keuring te (laten) verrichten, dan wel adviseurs te raadplegen teneinde een goed inzicht te verkrijgen over de staat en het gebruik van deze onroerende zaak.
– Voor het optimaal behartigen van diens belangen adviseert Wagemans Wonen geïnteresseerden en kopers om een professionele aankoopmakelaar in te schakelen.
– De Meetinstructie is gebaseerd op de NEN2580. De Meetinstructie is bedoeld om een meer eenduidige manier van meten toe te passen voor het geven van een indicatie van de gebruiksoppervlakte. De Meetinstructie sluit verschillen in meetuitkomsten niet volledig uit, door bijvoorbeeld interpretatieverschillen, afrondingen of beperkingen bij het uitvoeren van de meting.

Status Verkocht

Vraagprijs  385.000,-

Woonhuis soort Eengezinswoning

Woonhuis type Vrijstaande woning

Bouwjaar 1975

Woonoppervlakte 147 m²

Aantal kamers 7

Soort dak Zadeldak

Isolatie Dubbel glasdakisolatie

Perceel oppervlakte 399 m²

Bouwvorm Bestaande bouw

Energieklasse C

Onderhoud binnen Goed

Tuin Achtertuinvoortuin

Hoofdtuin Achtertuin

Oppervlakte hoofdtuin 125 m²

Ligging hoofdtuin Zuidwest

Kwaliteit tuin Normaal

Aanvaarding In overleg

Ligging In woonwijk

Parkeer faciliteiten Openbaar parkerenop eigen terrein

Garage Inpandig

Aantal slaapkamers 3

Bezichtiging plannen

Vul het formulier in de de bezichtiging te plannen.

"*" geeft vereiste velden aan

Naam*

253362272.jpg 253362264.jpg 253362284.jpg 253362290.jpg 253362296.jpg 253362372.jpg 253362386.jpg 253362352.jpg 253362388.jpg 253362390.jpg 253362392.jpg 253362394.jpg 253362400.jpg 253362396.jpg 253362404.jpg 253362410.jpg 253362414.jpg 253362420.jpg 253362474.jpg 253362436.jpg 253362444.jpg 253362452.jpg 253362456.jpg 253362424.jpg 253362430.jpg 253362468.jpg 253362464.jpg 253362460.jpg 253362302.jpg 253362308.jpg 253362312.jpg 253362322.jpg 253362316.jpg 254000276.jpg 254000280.jpg 254000288.jpg 254000340.jpg 254859684.jpg 254859688.jpg